Max Pasztory, Architekt DWB |
||||||
| C. H. Schrödterhaus/ H. C. Schrödterpassage, Leipzig | Revitalisierungsgutachten | |||||
![]() |
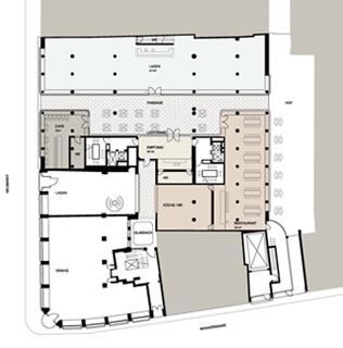
Im Erdgeschoss ist die Neugliederung in eine Verkehrs- und eine Verweilzone zur erweiterten Nutzung z.b. für Gastronomie geplant. Die Passage wird durch eine Lichtwand in der Verweilzone aufgewertet. Der Laden / das Kaufhaus an der linken Passagenseite kann über eine interne Treppenanlage zum gesamten 1. Obergeschoss erweitert werden. Im rückwärtigen ruhigeren Passagenteil ist ein Restaurant mit Blickbeziehung zum Passageneingang, sowie gegebenenfalls auch eine Hofbestuhlung denkbar. Die Büronutzung in den Obergeschossen wird über eine kleine Lobby mit einem Empfangstresen erschlossen. Vorgesehen ist auch eine Zugangsmöglichkeit zu dem bestehenden Treppenhaus im anschließenden Altbau mit einem zu ergänzendem Aufzug. |
|||||
| Grundriss Erdgeschoss |
|